Lot S7 – Macdonald

Projet
Reconversion des Entrepôt Macdonald. Construction neuve 82 logements locatifs.
Labels
Plan Climat Paris
Habitat et Environnement
Localisation
Boulevard Macdonald, 75019 Paris
MOA
Caisse Des Dépôt et Conssignation - Icade Promotion (MO déléguée)
MOE
Hondelatte Laporte Architectes
Arcoba (BET structure et fluides)
DVVD (Bet façades) + Acouphen (BET Acoustique)
Alto (BET thermique - H&E)
F. Boutté (BET HQE-Dévelloppement Durable)
Collaborateur
Ronan Lacroix
SP / SHAB
7 265 m2 / 6 055m2
Montant
10 320 918 € HT (1 704€ / m2)
Phase
Livraison janvier 2016



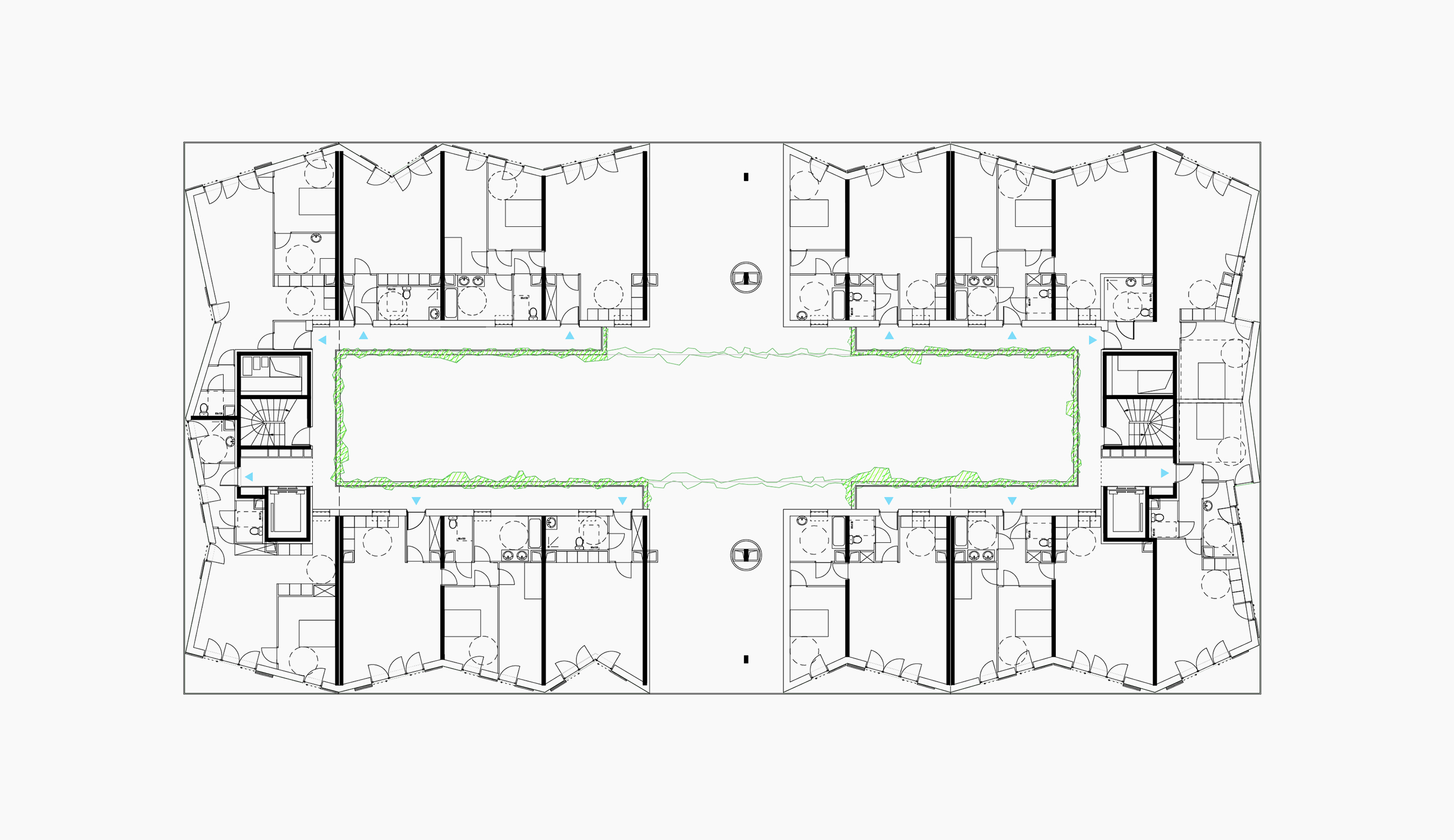
« Un vide central en quinconce offre à l’ensemble des logements une double orientation. Cet espace extérieur qui concentre les espaces de distributions est le cœur de la vie collective du projet. »
Niveau R+1




Coupe longitudinale





À propos
Le projet s’inscrit dans le cadre du Masterplan de l’entrepôt Macdonald réalisé par Rem Koolhaas. Située dans la zone de développement de Paris- Nord-Est, l’opération regroupe plusieurs agences d’architecture amenées à concevoir en parallèle logements, commerces, bureaux et équipements.
Le lot S7, attribué à l’agence Hondelatte Laporte Architectes, prévoit la réalisation de 82 logements locatifs. Le projet s’organise selon deux logiques principales. Un principe d’empilement de 4 strates typologiques (T4 duplex, T2 balcons, T3 loggias, penthouses) qui permet d’intégrer les contraintes formelles du masterplan et de garantir une grande variété d’appartements.
Le lot S7, attribué à l’agence Hondelatte Laporte Architectes, prévoit la réalisation de 82 logements locatifs. Le projet s’organise selon deux logiques principales. Un principe d’empilement de 4 strates typologiques (T4 duplex, T2 balcons, T3 loggias, penthouses) qui permet d’intégrer les contraintes formelles du masterplan et de garantir une grande variété d’appartements.
Deuxièmement, un vide central en quinconce offre à l’ensemble des logements une double orientation. Cet espace extérieur qui concentre les espaces de distributions est le cœur de la vie collective du projet.