F2 – Zac Interives

Projet
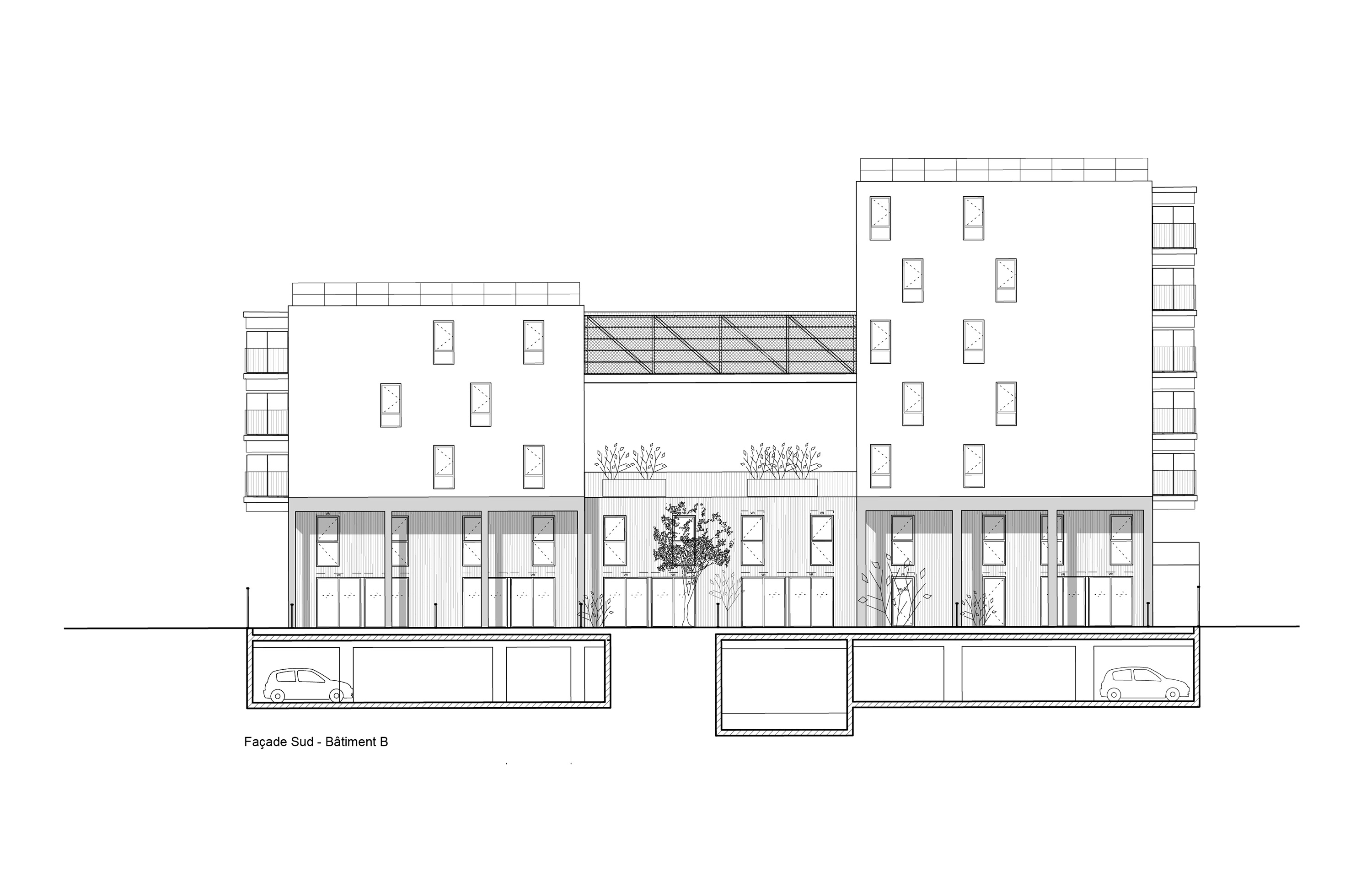
Construction neuve d’un immeuble mixte comprenant 164 logements dont 25 en logements sociaux et 20 logements en accession maitrisés, commerces, bureaux, espaces partagés et 243 places stationnements à Fleury les Aubrais (45).
Labels
Projet E2C1 / certification Cerqual H&E (logements sociaux)
Localisation
Zac Interives à Fleury les Aubrais (45)
MOA
Réalités Promotion
MOE
Ateliers Mathieu Laporte
(Architecte mandataire)
EGIS BET TCE / REFLEX acoustique
WIGMAM BET Environnementale
Collaborateurs
Jules Boucher-frémie, Violeta Loiaza et Gaëlle Pilon
SP / SHAB, SU commerces, SU Bureaux
11 248m2 / 8 862m2, 895m2, 947m2
Montant
19,5M€ HT
Phase
Appel d’offre en cours / Livraison Avril 2024


« L’architecture devra être à la fois forte et légère et devra accompagner les habitants, commerçants et riverains tout au long des saisons ou des heures de la journée. »




à propos
Le projet répond à plusieurs enjeux. Il s’agit à la fois d’apporter une réponse contextuelle à l’échelle de la ville et du quartier, de créer une identité urbaine forte en écho à chacun des environnements dans le respect des préconisations du PLU et des différentes contraintes, d’amener dans ce nouveau quartier une mixité programmatique, et d’offrir à chaque élément de programme des qualités spécifiques et appropriées.
L’architecture devra être à la fois forte et légère et devra accompagner les habitants, commerçants et riverains tout au long des saisons ou des heures de la journée. Dans ce quartier en devenir, le projet du lot F2 constitue la première opération de construction de logements de la ZAC Interives 1.