Coligny

Projet
Construction neuve de 45 logements sociaux collectifs
Projet BBC / Sélectionné au Concours EDF Bas Carbone 2011
Localisation
ZAC Coligny - Orléans (45)
MOA
Les résidences de l’Orléannais - OPH d’Orléans
MOE
Hondelatta Laporte Architectes (Mandataire)
Collaborateur
Mario Bonilla
SDP
4 160m2
Montant
4M€ HT
Phase
Concours juillet 2010 - non retenu



à propos
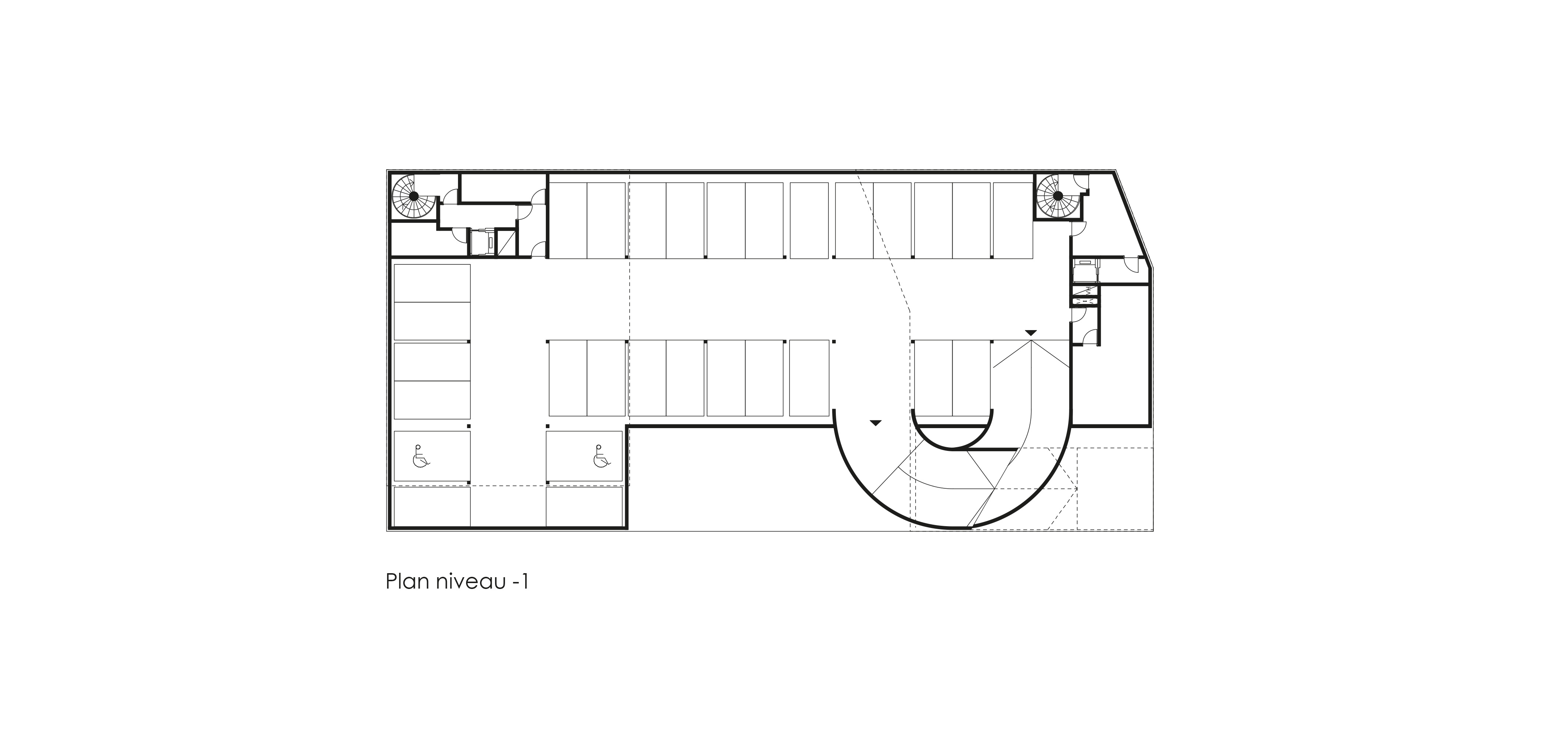
L’Ilot F, lot 2 de la ZAC de Coligny à Orléans est implanté sur un terrain de 1 195 m2. Le projet propose la réalisation d’une résidence de 45 logements collectifs sociaux.
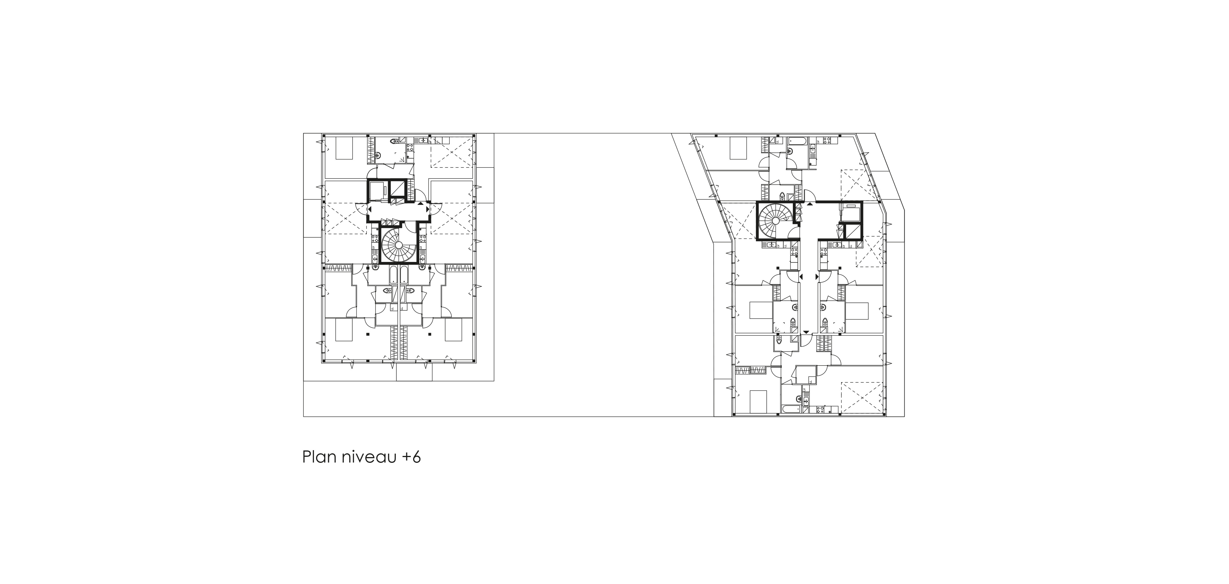
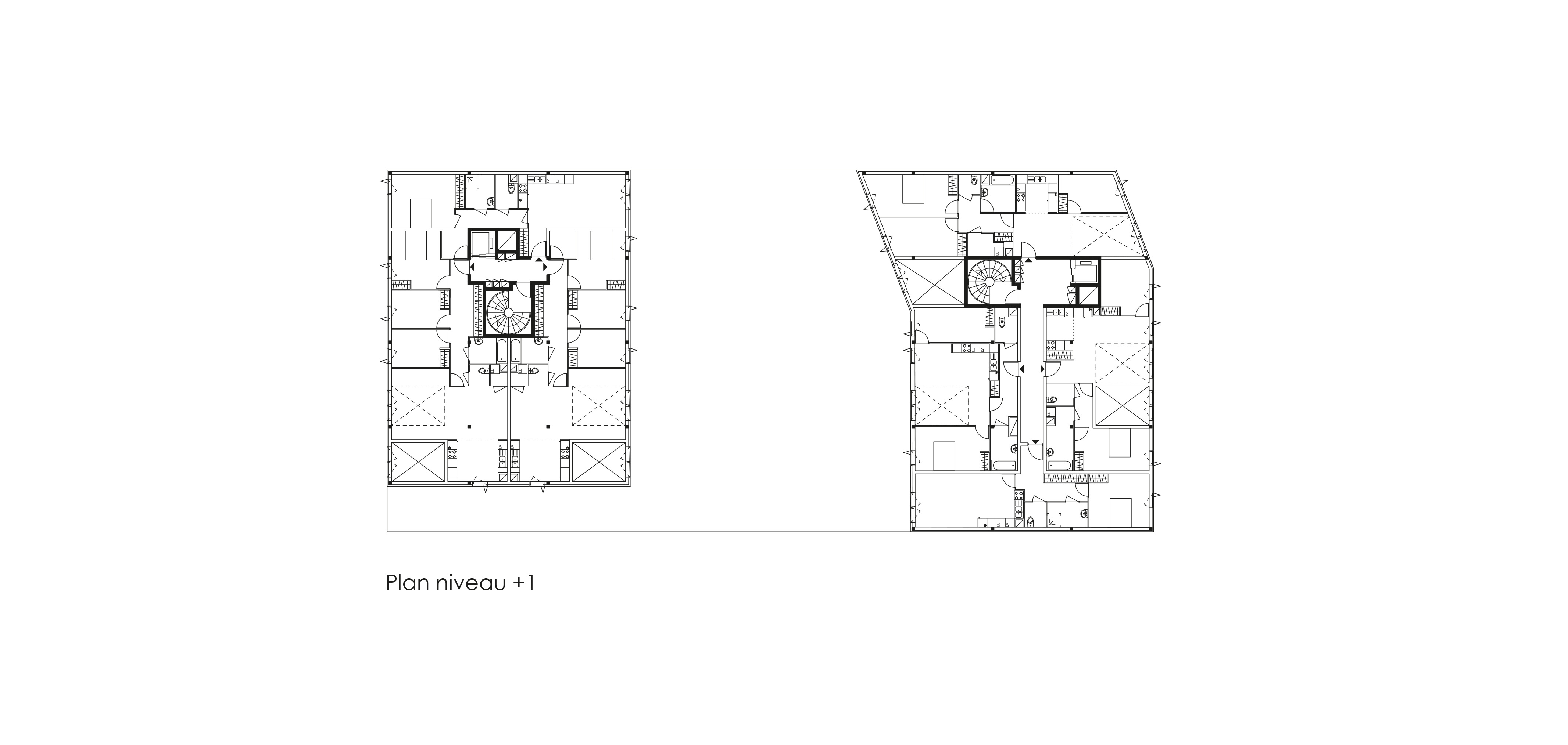
L’opération se répartit en deux bâtiments. Le bâtiment Ouest est composé de 20 logements. Le bâtiment Est est composé de 25 logements.
L’enjeu urbain est fort : il s’agit de réaliser une architecture qui devra traduire la modernité de l’opération et mettre en valeur le contexte de la ZAC. Deux bâtiments ceinturent l’ilot avec au cœur un jardin. Le gabarit des bâtiments est de R+6, composé d’un premier corps en R+4 avec 2 niveaux supplémentaires en attique.
L’opération se répartit en deux bâtiments. Le bâtiment Ouest est composé de 20 logements. Le bâtiment Est est composé de 25 logements.
L’enjeu urbain est fort : il s’agit de réaliser une architecture qui devra traduire la modernité de l’opération et mettre en valeur le contexte de la ZAC. Deux bâtiments ceinturent l’ilot avec au cœur un jardin. Le gabarit des bâtiments est de R+6, composé d’un premier corps en R+4 avec 2 niveaux supplémentaires en attique.
Selon leur implantation, les logements se déclinent en 3 familles de « + » qualitatifs : 35 logements en simplex bénéficient d’un salon en double hauteur (HSP : 5,20 m) avec une grande baie vitrée qui laisse généreusement pénétrer la lumière naturelle, 6 logements bénéficient d’une terrasse privative, 4 logements de petite typologie sont traversants.
Une percée visuelle Est/Ouest laisse deviner le jardin en cœur d’ilot. Ainsi, le raccord aux gabarits environnants et à la topographie naturelle du projet contribue à une insertion urbaine pertinente et à une qualité paysagère riche. L’ensemble forme un jeu de volumes pur, généreux et contemporain.
Une percée visuelle Est/Ouest laisse deviner le jardin en cœur d’ilot. Ainsi, le raccord aux gabarits environnants et à la topographie naturelle du projet contribue à une insertion urbaine pertinente et à une qualité paysagère riche. L’ensemble forme un jeu de volumes pur, généreux et contemporain.